Opportunity to own up to 2 office condos in St. Matthews!
4175 Westport Rd.
Louisville, KY 40207
Open Houses: Wednesday, September 11, from 12-2 p.m.
and Saturday, September 14, from 10-12 a.m.
Online Bidding Ends: Sunday, September 15, beginning at 7:00 pm
Click Here to View Real Estate Matterport
To view informational documents please click on the “Documents” tab.
For terms and conditions of this auction please click on the “Terms” tab.
10% Buyer’s Premium • $10,000 Down Payment per unit
4175 Westport Rd., Louisville, KY 40207
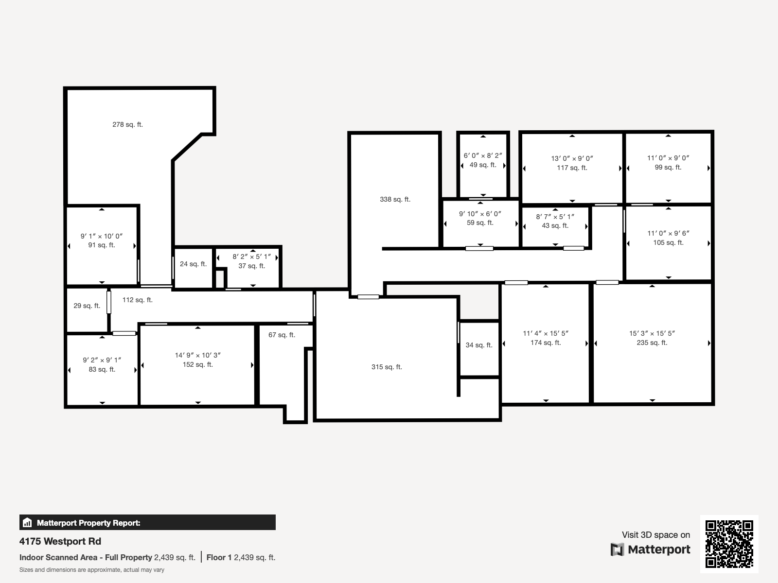
In St. Matthews sits Westwood Office Suites, a quiet, L-shaped office park tucked away in a corner off of Westport Road. It is home to units 104 and 106, which combined have over 2,400 square feet of office space.
Both units are located on the first floor and have their own unique appeal and highlights.
Unit 104 opens to a reception area with a built-in desk and custom cabinetry. With hardwood floors throughout the main areas, a long hallway passes a workstation with countertops and cabinets, four offices including a large corner office with lots of natural light, and a 117 square foot kitchen with a full-size refrigerator.
Unit 106 opens to a large reception area with two windows, a coat closet, and a storage closet. It offers three offices, two wet bars, and a conference room with built-in bookshelves and plenty of natural light.
Reason for Selling: Downsizing
Year Built: 1999 (Per PVA)
PVA Tax Assessed Value: Unit 104 is assessed at $247,160, Unit 106 is assessed at $256,600 for a total taxable value of $503,760.
Approximate Sq. Ft.: Unit 104 is approximately 1,217 square feet, Unit 106 is approximately 1,222 square feet. Please see the Matterport Diagram in the photos for each lot.
Parking: In accordance with the Westwood Office Condominiums Bylaws, each unit is entitled to 2.6 parking spaces.
Maintenance and Utilities: The current maintenance fee is $210 per month, per unit, and includes water.
Contents: The winning bidder has the opportunity to offer to purchase a selection of the contents in each unit.
Location: In St. Matthews, just West of Hubbards Lane, across the street from Target on Westport Road. East Louisville Pediatrics sits directly next door to the west.
Viewing: Both units will be available for viewing during the two open houses: Wednesday, September 11, from 12-2 p.m., and Saturday, September 14, from 10 a.m. - 2 p.m. Private viewings are available by appointment, please email Caitlin Wardlow, Auctioneer, at caitlin@wardlowauc.com, or call Jeff Perellis, Realtor, at 502-594-8717. Please allow at least a 24 hour notice.
Reserve: Once the cumulative bid price reaches or exceeds $450,000, the Seller has committed to selling. This could be for Lot #3 (both units together), or each unit separately, as long as the cumulative total bid reaches or exceeds $450,000. The winning bidder or bidders will be determined based on the highest cumulative bid price over $450,000.
NOTE: A 10% Buyer’s Premium will be added to the winning bid to determine the final contract selling price.
For Real Estate Informational Links please click on the “Documents” tab.
Real Estate Terms & Conditions
4175 Westport Rd., Unit 104 and/or Unit 106 Louisville, KY 40207
Online Only Auction
Online bidding only, online bidding ends on Sunday, September 15, 2024 and will start to close at 7:00 p.m. ET with extended bidding (please see explanation below).
Open Houses – Wednesday, September 11, from 12-2 p.m., and Saturday, September 13, from 10 a.m - 12 p.m.
Other days are available by appointment; email Caitlin Wardlow, Auctioneer at caitlin@wardlowauc.com or call Jeff Perellis, Realtor at 502-594-8717. Please allow at least a 24 hour notice.
Before you bid, be sure to read all of the Terms and Conditions, plus the bidding page information, and view all informational links in “Documents”.
All questions regarding this auction should be directed to Wardlow Auctions, Inc. Any member of our staff would be happy to answer your questions and make this an enjoyable auction experience for you.
Wardlow Auctions, Inc.
3600 Chamberlain Ln., Suite 222
Louisville, KY 40241
Office: (502) 489-5515
Email: office@wardlowauc.com
Auctioneer/Realtor: Caitlin Wardlow, Wardlow Auctions, Inc.
Realtor: Jeff Perellis, Berkshire Hathaway HomeServices, Parks & Weisberg Realtors
Broker: Judie Parks, Berkshire Hathaway HomeServices, Parks & Weisberg Realtors
Online bidding is offered as a courtesy. The Auctioneers, Wardlow Auctions, Inc., Seller, and the Internet and Software Providers do not guarantee or warrant the online bidding procedure and/or system to operate without interruption or malfunction and shall not be held responsible in the event of such.
Inspections: All descriptions, documents, and information are believed to be correct, but are not guaranteed. It is the Bidders responsibility to inspect and research the property and all descriptions, documents, and information to their complete and full satisfaction prior to bidding.
Buyer’s Premium: A 10% buyer’s premium will be added to the winning bid to determine the final selling price. For example, if the closing bid is $500,000, the Buyer's Premium would be $50,000, resulting in a final contract selling price of $550,000.
Registration: Registration is free but does require several important pieces of information. As with our live auctions, bidders must be registered with a full name, address, and telephone number and email address. Information from either a MasterCard or Visa is to be held on file. This information is obtained to establish bidder credentials and deter defunct bidding.
New Bidders: Please do not wait until the last minute to register for the auction. We suggest that you register early and then place a bid early in the auction (while the bids are still low) in order to familiarize yourself with the bidding process. It will make your auction experience much more relaxing and enjoyable.
How to Register for First Time Bidders: Click on “Register to Bid”, at the next page click on “Sign Up”, and then complete the information requested. Upon successful completion you will receive notice that you are approved to bid.
If You Have Already Registered: If you have already registered and been approved, you simply click on the “Register to Bid” link and on the next page, click on “Sign In”.
Bidding: Online bidding is to be understood as a binding contract. Bids will be taken with the understanding that the bidder will honor their winning bid with sufficient funds in the specified time frame. Notification of the winning bid will be made immediately at the auction's close.
Online bids can be made using three methods: On the right side of the bidding button select the drop-down button/arrow and select 1. Bid the current bid price or 2. Bid a specific amount by entering a custom bid or 3. Create a maxbid and let the system bid up to your maxbid.
“Bid (Amount):” This button shows the next bid required and allows the bidder to input a single bid as in a live auction. For example: if the bid is currently $100,000 the green box will say “Bid $100,500.
“Custom Bid”: This feature enables you to place a specific higher bid than the current bid. The current bid might be at $300,000 making the next bid $300,500, but you would like to bid $325,000.
“Set Max” Feature: This feature enables you to set a maximum bid so the computer does your bidding without you having to constantly view, log in, and bid on an item. Setting a maximum online is much like coming to a live auction with a preset spending limit in mind. The program will bid for you, in the prescribed increments, and only up to your spending limit for the item. For example: the current bid is $100,000 with Bidder A having the winning bid. Bidder B wants to place a bid and is willing to bid as much as $200,000. If Bidder B places a maximum bid of $200,000 the bid rises only to $100,500. If Bidder A returns and places a maximum bid of $200,000, the program automatically does the bidding in the pre-established increments. In this example the bidding will stop at $200,000 with Bidder B winning because they were the first to bid $200,000 with their maximum bid, the next bid would be $200,500, which is more than Bidder A’s limit of $200,000. Maximum bid amounts are kept confidential. Please note that the bid history page will post a message if the current high bid has been a result of a Maximum Bid. You can raise a bid or raise your maximum bid at any time prior to the close of the auction.
Bidding: Online bidding is to be understood as a binding contract. Bids will be taken with the understanding that the bidder will honor their winning bid with sufficient funds in the specified time frame. This is a reserve auction. If the reserve is reached, notification of the winning bid will be made immediately at the auction's close.
Bidding Increments: The bidding increments for this auction are set at $250 and thus bidding is in multiples $250.
Close of Bidding: Bidding is scheduled to close Sunday, September 15, 2024 beginning at 7:00 p.m. Eastern Time. All bids/offers should be made through this bidding site and shall be in accordance with the Terms and Conditions set forth for this sale and the Real Estate Purchase Contract which is available on the “Documents” tab on the main page.
Extended Ending: The close of the auction will be subject to an extended ending, whereas at the close of the auction, any bidding activity on an item within 3 minutes of the closing time will automatically extend the bidding for 3 more minutes past the time of the last bid. The bidding will continue to remain open in 3 minute intervals as long as there is bidding activity within 3 minutes of the previous bid. Once there is no bidding activity within the 3 minute period, the bidding will close. For example, if the bidding is scheduled to close at 7:00 PM but a last minute bid is placed at 6:59 PM, bidding will be extended until 7:02 PM. If another bid is placed on the item at 7:01 PM, bidding will then close at 7:04 PM, unless subsequent bids are placed.
Contract Execution: Following the auction, the successful bidder will be emailed, faxed, or delivered a contract to be signed by the prospective buyer and returned to Wardlow Auctions, Inc. by personal delivery or email no later than 2:00 p.m. ET, Monday, September 16, 2024. Copies of the Auction Purchase Contracts are available for review online. This contract is not contingent on any appraisal, financing, or inspection.
Click on the “Documents” tab on the main page and then click on “Real Estate Purchase Contract”.
Down Payment: The buyer shall make a $10,000.00 non-refundable down payment PER UNIT upon signing the Auction Purchase Contract. The down payment must be received no later than 2:00 pm ET on Monday, September 16, 2024. The down payment may be in the form of cash, an official bank check, certified check, good personal check, or wire transfer payable to Wardlow Auctions, Inc.
Closing: Closing for the property must be on or before Wednesday, October 30, 2024. The Buyer(s) shall pay the balance of the purchase price at closing. Buyer(s) and Sellers shall pay their respective closing costs as is common and customary to Jefferson County, Kentucky. This purchase is not contingent on any appraisal, financing, or inspections.
Disclaimer: Any and all descriptions, documents, and information provided in preparation for this auction has been obtained and forwarded in good faith to potential bidders for their convenience and information only. Such information is not warranted and as such the Seller, Realtor, Real Estate Company, Auctioneer and Auction Company shall not be held liable for inaccuracies in the information. Potential buyers are encouraged to obtain or verify, before the close of bidding, any information they consider critical to their decision to purchase.
Taxes: All real estate taxes due and payable in the calendar/fiscal year of closing shall be prorated between Buyer and Seller as of the date of closing as is common and customary to Jefferson County, Kentucky.
"As-Is” Condition: The property is being sold and purchased in “as-is” condition, “with-all-faults and attributes”, with no guarantees or warranties of any kind as to condition, fitness, use, or future use of the property and with all defects, apparent, non-apparent, and latent. BUYER hereby acknowledges that they have had the opportunity to inspect and research all aspects of the property to their complete and full satisfaction prior to bidding. All descriptions, information, including square footage, and documents provided in advertising and otherwise are believed correct, but are not guaranteed. Potential buyers are welcome to get any inspections they desire prior to the auction; however, the sale will not be contingent upon any inspection, either prior to or after signing of the Real Estate Purchase Contract.
Penalties: Any bids found to be fraudulent will result in all appropriate legal action. Delinquencies will also prevent the individual from participating in any further auctions conducted by Wardlow Auctions, Inc.
Real Estate Information Documents: For real estate informational documents please see the “Documents” tab on the main page.
Broker Participation: A Broker or agent whose client is the buyer of the real estate may be entitled to a 2% broker participation fee based on the final bid price. Agents must register their client prior to 12:00 pm on Sunday, September 15, 2024. Brokers and agents may obtain the registration form by clicking on the “Documents” tab on the main page and then clicking on “Broker Participation Form”.
Auctioneer's Right to Bid: In accordance with KRS330.220(6)(a), it is hereby disclosed that, with permission from the seller, the auctioneer, broker, agent, and any staff members reserve the right to bid. They also shall be able to place bids on behalf of bidders who do not have access to a computer.
Questions: All questions regarding the property should be directed to Caitlin Wardlow, Auctioneer, at (502) 541-0948. Any questions regarding the online bidding or auction process (registration, bid placement, etc.) should be directed to Wardlow Auctions Inc. at (502) 489-5515.
Location: These office condos are located in Westwood Office Condominiums in St. Matthews.
Online bidding is offered as a courtesy. The Auctioneer, Broker, Wardlow Auctions, Inc., Sellers, and the internet and software providers do not guarantee or warrant the online bidding procedure and/or system to operate without interruption or malfunction.

